Te huur: Damstraat 34Bis, 3531 BV Utrecht
€ 1.200,- /mnd
| Type object | Appartement, bovenwoning |
|---|---|
| Aanvaarding | Direct |
| Woonoppervlakte | 113 m² |
|---|---|
| Status | Nieuw in verhuur |
Beschrijving
***Wij verzoeken geïnteresseerden -UITSLUITEND- per e-mail te reageren op deze advertentie***
Damstraat 34-BS, Utrecht – Luxe bovenwoning met 3 semi-studio’s
Volledig gestoffeerde en gemeubileerde bovenwoning – 3 semi-studio’s – Full-service living
- Locatie: Damstraat 34-BS, Utrecht (Lombok / Centrum)
- Opgeleverd: 2026
- Totale woonoppervlakte: ± 113 m² + dakterras ±13 m²
Omschrijving
Beleef het gemak en comfort van deze moderne bovenwoning in hartje Lombok, op slechts enkele minuten van Utrecht Centraal. De woning is ingedeeld in drie semi-studio’s die gezamenlijk worden verhuurd aan maximaal drie personen via één huurovereenkomst. De bewoners hebben gezamenlijk toegang tot een lichte, ruime woonkamer met open keuken, twee luxe badkamers en een royaal dakterras, ideaal om te ontspannen of te genieten van het uitzicht. Dankzij de full-service inrichting, volledig gestoffeerd en gemeubileerd, is de woning direct te betrekken en biedt zij een hoog wooncomfort.
Doelgroep
De woning is ideaal voor young professionals, starters met vaste baan of expats die comfortabel, centraal en gezamenlijk willen wonen. Iedere huurder beschikt over een eigen privéruimte, terwijl de gedeelde voorzieningen zorgen voor een prettige balans tussen privacy en gezamenlijk wonen.
Belangrijk: alle huurders tekenen één gezamenlijke huurovereenkomst en zijn hoofdelijk aansprakelijk voor de volledige huurprijs en de naleving van de gemaakte afspraken. Met de term “semi-studio” wordt bedoeld dat huurders beschikken over een eigen privéruimte, terwijl voorzieningen zoals woonkamer, keuken en badkamers worden gedeeld. Deze term wordt commercieel gebruikt; juridisch betreft het één zelfstandige bovenwoning.
De woning beschikt over
- Gedeelde woonkamer en open keuken – ruim, modern en voorzien van luxe apparatuur
- Gedeeld dakterras van ca. 13 m² – perfect voor ontspanning en sociaal contact
- 2 badkamers – comfortabel ingedeeld voor gezamenlijk gebruik
- Maximaal 1 persoon per studio – optimale balans tussen privacy en gemeenschappelijk wonen
- Full-service voorzieningen inclusief internet, gebruik wasmachine en onderhoud van gedeelde ruimtes
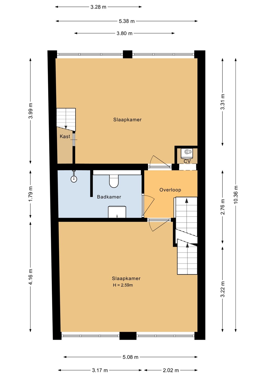
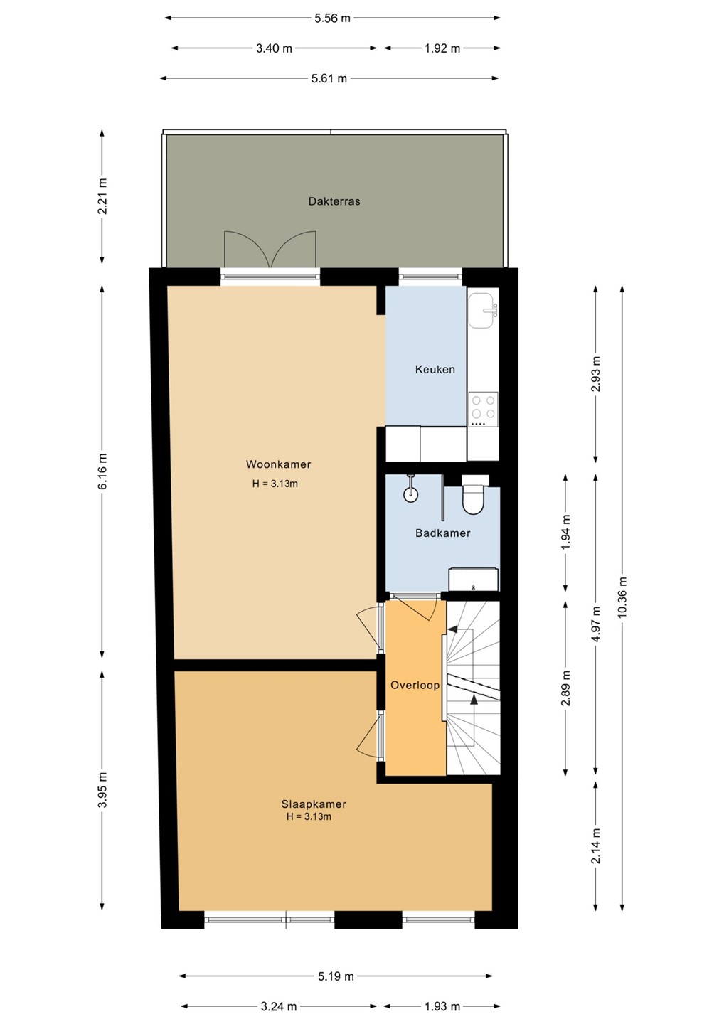
Indeling en gebruiksoppervlakte (zie ook plattegronden)
• Studio 1 (voorzijde, 1e verdieping): ca. 17 m². Deze studio heeft een L-vormige indeling met een hoog plafond en grote ramen, wat zorgt voor een prettige lichtinval en een ruimtelijk gevoel. De ligging aan de voorzijde biedt vrij uitzicht op de straat en maakt de studio functioneel en comfortabel in gebruik.
• Studio 2 (achterzijde, 2e verdieping): ca. 23 m² + entresol. Deze studio beschikt over een prettige indeling met een entresol, waardoor het woon- en slaapgedeelte optimaal van elkaar gescheiden zijn. De studio is rustig gelegen en biedt veel licht en comfort.
• Studio 3 (voorzijde, 2e verdieping): ca. 19 m² + entresol. Deze studio is efficiënt en licht ingedeeld en beschikt eveneens over een entresol die extra gebruiksruimte creëert. Dankzij de ligging aan de voorzijde heeft de studio een prettige lichtinval en een open gevoel.
• Totale NEN-gecertificeerde gebruiksoppervlakte inclusief gedeelde ruimtes: ca. 113 m²
• Woonkamer, keuken, badkamers en dakterras zijn hierin inbegrepen
• Meetrapport beschikbaar
Huurprijs en voorzieningen
- Totale huurprijs: €3.950,- per maand voor gehele woning
- Inclusief: gas, water, elektra (voorschot), internet, gebruik wasmachine, onderhoud van gemeenschappelijke ruimtes
- Gemeentelijke gebruikersheffingen en belastingen zijn voor rekening van de huurder
Indicatieve verdeling van de huurprijs per semi-studio (uitsluitend ter informatie; geen afzonderlijke verhuur):
• Studio 1: ca. € 1.200,-
• Studio 2: ca. € 1.400,-
• Studio 3: ca. € 1.350,-
Kenmerken en bijzonderheden
• Aanvaarding: per direct
• Buitenruimte: zonnig dakterras van ca. 13 m²
• Bouwjaar: 1908 / Renovatie 2025–2026
• Energielabel: A
• Oplevering: volledig gestoffeerd en gemeubileerd
• Huurperiode: onbepaalde tijd
• Waarborgsom: twee maanden huursom
• Huisdieren: niet toegestaan
• Ligging: op loopafstand van centrum, station, OV en winkels
• Uitvalswegen: A2 binnen circa 10 minuten bereikbaar
• Verhuurder behoudt zich het recht van gunning voor
Disclaimer
Deze advertentie is uitsluitend informatief en onder voorbehoud van goedkeuring door de verhuurder. Afmetingen, huurprijs, indeling en overige gegevens zijn indicatief. Aan de inhoud kunnen geen rechten worden ontleend. De verhuurder behoudt zich het recht voor om voorwaarden te stellen, gunning te verlenen en beschikbaarheid te wijzigen.
###FOR ENGLISH READ BELOW###:
***We kindly request that interested parties respond -EXCLUSIVELY- by email regarding this listing***
Damstraat 34-BS, Utrecht – Luxury Upper Apartment with 3 Semi-Studios
Fully upholstered and furnished upper apartment – 3 semi-studios – Full-service living
• Location: Damstraat 34-BS, Utrecht (Lombok / City Centre)
• Completed: 2026
• Total living area: approx. 113 m² + roof terrace approx. 13 m²
Description
Experience the convenience and comfort of this modern upper apartment in the heart of Lombok, just a few minutes from Utrecht Central Station. The property is divided into three semi-studios, which are jointly rented to a maximum of three tenants under a single lease agreement.
Residents share access to a bright and spacious living room with open kitchen, two luxury bathrooms, and a generous roof terrace, ideal for relaxation or enjoying the view. Thanks to the full-service setup, fully upholstered and furnished, the apartment is ready for immediate occupancy and offers a high level of living comfort.
Target group
The apartment is ideal for young professionals, starters with a permanent job, or expats who wish to live comfortably, centrally, and together. Each tenant has a private living space, while the shared facilities provide a pleasant balance between privacy and communal living.
Important: all tenants sign one joint lease agreement and are jointly and severally liable for the full rent and compliance with the agreed terms. The term “semi-studio” means that tenants have their own private living space, while facilities such as the living room, kitchen, and bathrooms are shared. This is a commercial term; legally, the property constitutes one independent residential unit.
The apartment features
• Shared living room with open kitchen – spacious, modern, and fully equipped with high-quality appliances
• Shared roof terrace of approx. 13 m² – perfect for relaxation and social interaction
• Two bathrooms, arranged for shared use
• Maximum one person per semi-studio
• Full-service amenities including internet, use of washing machine, and maintenance of shared areas
Layout and usable area (see also floor plans)
• Studio 1 (front side, 1st floor): approx. 17 m²
This studio features an L-shaped layout with a high ceiling and large windows, providing pleasant natural light and a spacious feel. Its front-facing position offers an open view of the street and makes the studio practical and comfortable to use.
• Studio 2 (rear side, 2nd floor): approx. 23 m² + mezzanine
This studio has a well-designed layout with a mezzanine, allowing the living and sleeping areas to be optimally separated. The studio is quietly located and offers ample light and comfort.
• Studio 3 (front side, 2nd floor): approx. 19 m² + mezzanine
This studio is efficiently and brightly laid out and also features a mezzanine that creates additional usable space. Thanks to its front-facing position, the studio benefits from pleasant natural light and an open feel.
• Total NEN-certified usable area including shared spaces: approx. 113 m²
• Living room, kitchen, bathrooms, and roof terrace are included
• Measurement report available
Rent and services
• Total rent: €3,950 per month for the entire apartment
• Included: gas, water, electricity (advance payment), internet, use of washing machine, maintenance of common areas
• Municipal user taxes and charges are payable by the tenant
Indicative rent allocation per semi-studio (for information only; no separate rental):
• Studio 1: approx. €1,200
• Studio 2: approx. €1,400
• Studio 3: approx. €1,350
Key features
• Availability: immediately
• Outdoor space: sunny roof terrace approx. 13 m²
• Year of construction: 1908 / Renovation 2025–2026
• Energy label: A
• Delivered fully upholstered and furnished
• Lease term: indefinite
• Security deposit: two months’ rent
• Pets: not allowed
• Location: within walking distance of city centre, station, public transport, and shops
• Motorway access: A2 reachable within approximately 10 minutes
• Landlord reserves the right of allocation
Disclaimer
This advertisement is for informational purposes only and subject to approval by the landlord. Dimensions, rent, layout, and other details are indicative. No rights may be derived from this information. The landlord reserves the right to impose conditions, grant allocation, and amend availability.
Damstraat 34-BS, Utrecht – Luxe bovenwoning met 3 semi-studio’s
Volledig gestoffeerde en gemeubileerde bovenwoning – 3 semi-studio’s – Full-service living
- Locatie: Damstraat 34-BS, Utrecht (Lombok / Centrum)
- Opgeleverd: 2026
- Totale woonoppervlakte: ± 113 m² + dakterras ±13 m²
Omschrijving
Beleef het gemak en comfort van deze moderne bovenwoning in hartje Lombok, op slechts enkele minuten van Utrecht Centraal. De woning is ingedeeld in drie semi-studio’s die gezamenlijk worden verhuurd aan maximaal drie personen via één huurovereenkomst. De bewoners hebben gezamenlijk toegang tot een lichte, ruime woonkamer met open keuken, twee luxe badkamers en een royaal dakterras, ideaal om te ontspannen of te genieten van het uitzicht. Dankzij de full-service inrichting, volledig gestoffeerd en gemeubileerd, is de woning direct te betrekken en biedt zij een hoog wooncomfort.
Doelgroep
De woning is ideaal voor young professionals, starters met vaste baan of expats die comfortabel, centraal en gezamenlijk willen wonen. Iedere huurder beschikt over een eigen privéruimte, terwijl de gedeelde voorzieningen zorgen voor een prettige balans tussen privacy en gezamenlijk wonen.
Belangrijk: alle huurders tekenen één gezamenlijke huurovereenkomst en zijn hoofdelijk aansprakelijk voor de volledige huurprijs en de naleving van de gemaakte afspraken. Met de term “semi-studio” wordt bedoeld dat huurders beschikken over een eigen privéruimte, terwijl voorzieningen zoals woonkamer, keuken en badkamers worden gedeeld. Deze term wordt commercieel gebruikt; juridisch betreft het één zelfstandige bovenwoning.
De woning beschikt over
- Gedeelde woonkamer en open keuken – ruim, modern en voorzien van luxe apparatuur
- Gedeeld dakterras van ca. 13 m² – perfect voor ontspanning en sociaal contact
- 2 badkamers – comfortabel ingedeeld voor gezamenlijk gebruik
- Maximaal 1 persoon per studio – optimale balans tussen privacy en gemeenschappelijk wonen
- Full-service voorzieningen inclusief internet, gebruik wasmachine en onderhoud van gedeelde ruimtes
Indeling en gebruiksoppervlakte (zie ook plattegronden)
• Studio 1 (voorzijde, 1e verdieping): ca. 17 m². Deze studio heeft een L-vormige indeling met een hoog plafond en grote ramen, wat zorgt voor een prettige lichtinval en een ruimtelijk gevoel. De ligging aan de voorzijde biedt vrij uitzicht op de straat en maakt de studio functioneel en comfortabel in gebruik.
• Studio 2 (achterzijde, 2e verdieping): ca. 23 m² + entresol. Deze studio beschikt over een prettige indeling met een entresol, waardoor het woon- en slaapgedeelte optimaal van elkaar gescheiden zijn. De studio is rustig gelegen en biedt veel licht en comfort.
• Studio 3 (voorzijde, 2e verdieping): ca. 19 m² + entresol. Deze studio is efficiënt en licht ingedeeld en beschikt eveneens over een entresol die extra gebruiksruimte creëert. Dankzij de ligging aan de voorzijde heeft de studio een prettige lichtinval en een open gevoel.
• Totale NEN-gecertificeerde gebruiksoppervlakte inclusief gedeelde ruimtes: ca. 113 m²
• Woonkamer, keuken, badkamers en dakterras zijn hierin inbegrepen
• Meetrapport beschikbaar
Huurprijs en voorzieningen
- Totale huurprijs: €3.950,- per maand voor gehele woning
- Inclusief: gas, water, elektra (voorschot), internet, gebruik wasmachine, onderhoud van gemeenschappelijke ruimtes
- Gemeentelijke gebruikersheffingen en belastingen zijn voor rekening van de huurder
Indicatieve verdeling van de huurprijs per semi-studio (uitsluitend ter informatie; geen afzonderlijke verhuur):
• Studio 1: ca. € 1.200,-
• Studio 2: ca. € 1.400,-
• Studio 3: ca. € 1.350,-
Kenmerken en bijzonderheden
• Aanvaarding: per direct
• Buitenruimte: zonnig dakterras van ca. 13 m²
• Bouwjaar: 1908 / Renovatie 2025–2026
• Energielabel: A
• Oplevering: volledig gestoffeerd en gemeubileerd
• Huurperiode: onbepaalde tijd
• Waarborgsom: twee maanden huursom
• Huisdieren: niet toegestaan
• Ligging: op loopafstand van centrum, station, OV en winkels
• Uitvalswegen: A2 binnen circa 10 minuten bereikbaar
• Verhuurder behoudt zich het recht van gunning voor
Disclaimer
Deze advertentie is uitsluitend informatief en onder voorbehoud van goedkeuring door de verhuurder. Afmetingen, huurprijs, indeling en overige gegevens zijn indicatief. Aan de inhoud kunnen geen rechten worden ontleend. De verhuurder behoudt zich het recht voor om voorwaarden te stellen, gunning te verlenen en beschikbaarheid te wijzigen.
###FOR ENGLISH READ BELOW###:
***We kindly request that interested parties respond -EXCLUSIVELY- by email regarding this listing***
Damstraat 34-BS, Utrecht – Luxury Upper Apartment with 3 Semi-Studios
Fully upholstered and furnished upper apartment – 3 semi-studios – Full-service living
• Location: Damstraat 34-BS, Utrecht (Lombok / City Centre)
• Completed: 2026
• Total living area: approx. 113 m² + roof terrace approx. 13 m²
Description
Experience the convenience and comfort of this modern upper apartment in the heart of Lombok, just a few minutes from Utrecht Central Station. The property is divided into three semi-studios, which are jointly rented to a maximum of three tenants under a single lease agreement.
Residents share access to a bright and spacious living room with open kitchen, two luxury bathrooms, and a generous roof terrace, ideal for relaxation or enjoying the view. Thanks to the full-service setup, fully upholstered and furnished, the apartment is ready for immediate occupancy and offers a high level of living comfort.
Target group
The apartment is ideal for young professionals, starters with a permanent job, or expats who wish to live comfortably, centrally, and together. Each tenant has a private living space, while the shared facilities provide a pleasant balance between privacy and communal living.
Important: all tenants sign one joint lease agreement and are jointly and severally liable for the full rent and compliance with the agreed terms. The term “semi-studio” means that tenants have their own private living space, while facilities such as the living room, kitchen, and bathrooms are shared. This is a commercial term; legally, the property constitutes one independent residential unit.
The apartment features
• Shared living room with open kitchen – spacious, modern, and fully equipped with high-quality appliances
• Shared roof terrace of approx. 13 m² – perfect for relaxation and social interaction
• Two bathrooms, arranged for shared use
• Maximum one person per semi-studio
• Full-service amenities including internet, use of washing machine, and maintenance of shared areas
Layout and usable area (see also floor plans)
• Studio 1 (front side, 1st floor): approx. 17 m²
This studio features an L-shaped layout with a high ceiling and large windows, providing pleasant natural light and a spacious feel. Its front-facing position offers an open view of the street and makes the studio practical and comfortable to use.
• Studio 2 (rear side, 2nd floor): approx. 23 m² + mezzanine
This studio has a well-designed layout with a mezzanine, allowing the living and sleeping areas to be optimally separated. The studio is quietly located and offers ample light and comfort.
• Studio 3 (front side, 2nd floor): approx. 19 m² + mezzanine
This studio is efficiently and brightly laid out and also features a mezzanine that creates additional usable space. Thanks to its front-facing position, the studio benefits from pleasant natural light and an open feel.
• Total NEN-certified usable area including shared spaces: approx. 113 m²
• Living room, kitchen, bathrooms, and roof terrace are included
• Measurement report available
Rent and services
• Total rent: €3,950 per month for the entire apartment
• Included: gas, water, electricity (advance payment), internet, use of washing machine, maintenance of common areas
• Municipal user taxes and charges are payable by the tenant
Indicative rent allocation per semi-studio (for information only; no separate rental):
• Studio 1: approx. €1,200
• Studio 2: approx. €1,400
• Studio 3: approx. €1,350
Key features
• Availability: immediately
• Outdoor space: sunny roof terrace approx. 13 m²
• Year of construction: 1908 / Renovation 2025–2026
• Energy label: A
• Delivered fully upholstered and furnished
• Lease term: indefinite
• Security deposit: two months’ rent
• Pets: not allowed
• Location: within walking distance of city centre, station, public transport, and shops
• Motorway access: A2 reachable within approximately 10 minutes
• Landlord reserves the right of allocation
Disclaimer
This advertisement is for informational purposes only and subject to approval by the landlord. Dimensions, rent, layout, and other details are indicative. No rights may be derived from this information. The landlord reserves the right to impose conditions, grant allocation, and amend availability.
Kenmerken
| Overdracht | |
|---|---|
| Referentienummer | 01068 |
| Huurprijs | € 1.200,- per maand (incl. gas, incl. water, incl. elektriciteit, gemeubileerd, gestoffeerd, geïndexeerd) |
| Borg | € 2.200,- |
| Servicekosten | € 100,- per maand |
| Inrichting | Ja |
| Inrichting | Gemeubileerd |
| Status | Nieuw in verhuur |
| Aanvaarding | Direct |
| Aangeboden sinds | Zaterdag 31 januari 2026 |
| Bouw | |
|---|---|
| Type object | Appartement, bovenwoning |
| Woonlaag | 1e woonlaag |
| Soort bouw | Bestaande bouw |
| Bouwperiode | 1906 |
| Dakbedekking | Dakpannen |
| Type dak | Zadeldak |
| Isolatievormen | Dakisolatie Dubbel glas HR-glas Muurisolatie Vloerisolatie Volledig geïsoleerd |
| Oppervlaktes en inhoud | |
|---|---|
| Woonoppervlakte | 113 m² |
| Inhoud | 466 m³ |
| Oppervlakte gebouwgebonden buitenruimte | 13 m² |
| Indeling | |
|---|---|
| Aantal bouwlagen | 2 |
| Aantal kamers | 4 (waarvan 3 slaapkamers) |
| Aantal badkamers | 2 |
| Locatie | |
|---|---|
| Ligging | Dichtbij openbaar vervoer In centrum In woonwijk Nabij school Nabij snelweg Nabij treinstation |
| Energieverbruik | |
|---|---|
| Energielabel | A |
| CV ketel | |
|---|---|
| CV ketel | HR-107 ketel |
| Warmtebron | Gas |
| Bouwjaar | 2025 |
| Combiketel | Ja |
| Eigendom | Eigendom |
| Uitrusting | |
|---|---|
| Warm water | CV-ketel |
| Verwarmingssysteem | Centrale verwarming |
| Badkamervoorzieningen Badkamer 1 | Inloopdouche Toilet Wastafelmeubel |
| Badkamervoorzieningen Badkamer 2 | Dubbele wastafel Inloopdouche Toilet |
| Beschikt over een internetverbinding | Ja |
| Heeft een dakraam | Ja |