Beschrijving
Wonen aan één van de mooiste lanen van Oog in Al? Deze karakteristieke jaren ’30 tussenwoning aan de Beethovenlaan combineert sfeer, ruimte én uitzonderlijke uitbreidingsmogelijkheden op een toplocatie in Utrecht. Aan het einde van de straat bevindt zich het groene hart van de wijk: Park Oog in Al, letterlijk op loopafstand.
Niet alleen de woning ademt karakter, ook de straatnaam vertelt een verhaal. Oog in Al staat bekend om haar lanen die zijn vernoemd naar beroemde componisten. Wonen aan de Beethovenlaan betekent wonen op een locatie met een klassieke signatuur, passend bij de tijdloze charme en degelijkheid van deze woning.
Met drie slaapkamers, een ruime geïsoleerde zolderverdieping en een L-vormige achtertuin met achterom vormt deze woning een solide en charmante basis. Authentieke details, de erker aan de voorzijde en de prettige lichtinval zorgen direct voor warmte en karakter. Tegelijkertijd biedt het huis een uitgelezen kans om hier écht een eigen thuis van te maken, met volop mogelijkheden om naar wens te moderniseren en verder te verduurzamen.
Met name de zolderverdieping maakt dit een woning met toekomst. Deze etage is reeds geïsoleerd en voorzien van een dakkapel aan de voorzijde, maar biedt nog veel potentie. Door het realiseren van een dakkapel aan de achterzijde kan hier aanzienlijk extra woonruimte worden gecreëerd, denk aan twee extra slaapkamers, een royale master bedroom met werkplek of zelfs een aanvullende badkamer. Hier ligt de kans om de woning volledig af te stemmen op uw woonwensen en levensfase.
Onderhoud en afwerking
De woning is degelijk gebouwd en biedt een uitstekende basis voor verdere verfijning. Dit geeft kopers de mooie kans om de woning volledig naar eigen smaak en kwaliteitsniveau te moderniseren en in te richten. Een ideale gelegenheid om karakter en comfort samen te brengen en hier een persoonlijk en eigentijds thuis van te maken dat aansluit bij uw woonwensen en toekomstplannen.
Ligging, omgeving en voorzieningen
De woning ligt aan een brede en groene laan in Oog in Al, een populaire jaren ’30-wijk met een bijna dorps karakter. De straat kenmerkt zich door rust, brede stoepen en karakteristieke architectuur uit de jaren dertig, een combinatie die deze buurt zeer geliefd maakt bij gezinnen en woningzoekers die sfeer én voorzieningen zoeken.
In de directe omgeving bevinden zich diverse basisscholen, kinderopvanglocaties, sportfaciliteiten en speeltuinen. Uiteraard ligt Park Oog in Al aan het einde van de straat. Het park fungeert als verlengstuk van de woonomgeving: zwemmen bij de Muntsluizen in Lombok, nabij de Muntkade in de zomer, wandelen, sporten of picknicken in het groen.
Voor de dagelijkse boodschappen kunt u terecht in de nabijgelegen Händelstraat, een charmant buurtcentrum met een ontspannen en dorps karakter. Hier vindt u eigentijdse winkels met een gevarieerd aanbod en kunt u genieten van een kop koffie of diner op één van de gezellige terrassen. Alles op loopafstand van de woning, op een plek die opvallend rustig is.
Ook populaire horecagelegenheden zoals Landhuis in de Stad en Buurten in de Fabriek zijn eenvoudig per fiets of te voet bereikbaar. U woont hier in het groen, maar met de binnenstad van Utrecht binnen handbereik.
Bereikbaarheid
Met de fiets staat u in circa 10 minuten in het centrum van Utrecht of bij Utrecht Centraal. Openbaar vervoer (diverse buslijnen) bevindt zich op loopafstand. Met de auto bereikt u binnen enkele minuten de A2, A12 of A27. Daarnaast is er ruime parkeergelegenheid direct voor de deur.
Ook aan recreatie is volop gedacht: naast Park Oog in Al ligt het Majellapark in de nabije omgeving. Kortom, een ideale woonlocatie voor wie ruimte, sfeer, groen en bereikbaarheid wil combineren.
Fijne buren, levendige en kindvriendelijke buurt
Oog in Al staat bekend om haar warme, betrokken en zeer kindvriendelijke karakter. Kinderen spelen hier veilig op straat, buren kennen elkaar en er worden regelmatig buurtactiviteiten georganiseerd. Tegelijkertijd is deze woning ook bijzonder geschikt voor stellen die hier hun toekomst willen opbouwen. De ruimte, uitbreidingsmogelijkheden en de ligging maken dit een investering in jarenlang woonplezier.
Een woning met karakter, potentie en een locatie die zelden vrijkomt, klaar om door nieuwe bewoners verder vormgegeven te worden.
Voor afmetingen en plattegronden, zie NEN 2580 meetrapport.
Toelichtingsclausule NEN2580: De Meetinstructie is gebaseerd op de NEN2580 en is bedoeld om een eenduidige methode van meten toe te passen. Eventuele meetverschillen kunnen echter niet volledig worden uitgesloten.
Indeling
Begane grond
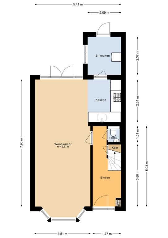
Via de voortuin betreedt u de woning in de hal met trapopgang, praktische trapkast (kelder) met meterkast en toiletruimte.
Woonkamer en open keuken
De ruime en lichte woonkamer beschikt over een sfeervolle erker aan de voorzijde, een houten vloer en gestucte plafonds. De grote raampartijen zorgen voor een prettige lichtinval en versterken het ruimtelijke gevoel. Aan de achterzijde openen dubbele deuren naar de L-vormige achtertuin, wat zorgt voor een fijne verbinding tussen binnen en buiten. De open keuken bevindt zich aan de achterzijde en is uitgevoerd in een praktische hoekopstelling met inbouwapparatuur. Aansluitend ligt de ruime bijkeuken met aansluitingen voor wasmachine en droger en toegang tot de achtertuin.
Buitenruimte met achterom
De woning beschikt over een voortuin en een L-vormige achtertuin op het noordwesten met achterom, gelegen op een perceel van 105 m². De tuin is voorzien van bestrating, groene borders, buitenkraan en verlichting en biedt ruimte voor meerdere zitplekken of speelruimte.
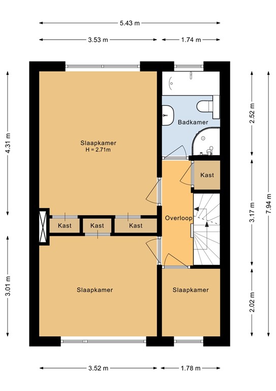
Eerste verdieping
Overloop met vaste kast en toegang tot drie slaapkamers en de badkamer. Aan de voorzijde bevinden zich een kleinere slaapkamer en een ruime slaapkamer met vaste kast. Aan de achterzijde ligt de hoofdslaapkamer met twee vaste kasten. De badkamer is voorzien van een douchecabine, ligbad, wastafelmeubel en tweede toilet.
Tweede verdieping
Via een vaste trap bereikt u de ruime open zolderverdieping. Deze etage is geïsoleerd en voorzien van een dakkapel aan de voorzijde en een dakraam aan de achterzijde. De cv-installatie is netjes weggewerkt en achter de knieschotten bevindt zich praktische bergruimte. Door het realiseren van een dakkapel aan de achterzijde kan hier aanzienlijk extra woonruimte worden gecreëerd, bijvoorbeeld twee extra slaapkamers of een royale master bedroom met werkplek of aanvullende badkamer.
Duurzaamheid
- Energielabel C
- 6 zonnepanelen
- Grotendeels voorzien van dubbele beglazing
Met aanvullende isolatiemaatregelen is de woning relatief eenvoudig verder te verduurzamen en energetisch te optimaliseren.
Bijzonderheden en kenmerken
- Woonoppervlakte: ca. 115 m²
- Perceeloppervlakte: 105 m²
- Inhoud: ca. 442 m³
- Bouwjaar: circa 1926
- Karakteristieke jaren ’30 tussenwoning
- Gelegen aan brede en groene laan in Oog in Al
- Diepe L-vormige achtertuin met achterom (NW)
- Drie slaapkamers en ruime zolderverdieping
- Energielabel C
- Verwarming en warm water via Bosch HR cv-ketel
- Oplevering in overleg
- In de op te stellen koopovereenkomst worden onder meer een niet-zelfbewoningsclausule, een asbestclausule en een ouderdomsclausule opgenomen.
Deze informatie is met zorg samengesteld, maar geheel vrijblijvend en onder voorbehoud van goedkeuring door verkoper. Aan deze gegevens kunnen geen rechten worden ontleend. Deze informatie dient als uitnodiging tot het doen van een bod.
Plattegronden
Begane grond - markings.jpg
Eerste verdieping - 2D.jpg
Eerste verdieping - 3D.png
Eerste verdieping - markings.jpg
Tweede verdieping - 2D.jpg
Tweede verdieping - 3D.png
Tweede verdieping - markings.jpg