Te koop: Patmosdreef 34, 3562 JM Utrecht
€ 389.000,- k.k.
| Type object | Appartement, portiekflat |
|---|---|
| Aanvaarding | In overleg |
| Woonoppervlakte | 90,5 m² |
|---|---|
| Status | Nieuw in verkoop |
Beschrijving
Patmosdreef 34, Utrecht | Wonen tussen groen, gemak en goede bereikbaarheid
Licht, ruimte en een praktische indeling komen hier mooi samen. Aan de Patmosdreef 34 woon je in een royaal appartement van circa 91 m² met balkon en berging, in een groene omgeving en met alle voorzieningen binnen handbereik. De woning beschikt over meerdere kamers die zich uitstekend lenen voor slapen, thuiswerken of hobby’s en voelt dankzij de logische indeling direct prettig aan. Gratis parkeren in de buurt, goede bereikbaarheid en het winkelcentrum Overvecht op loopafstand maken dit een aantrekkelijke en comfortabele woonplek.
Locatie en omgeving
Het appartement ligt in een rustige, groene buurt in Overvecht. Winkelcentrum Overvecht bevindt zich op loopafstand en biedt een uitgebreid aanbod aan winkels en voorzieningen. Openbaar vervoer is goed vertegenwoordigd; station Utrecht Overvecht is binnen enkele minuten te bereiken en diverse busverbindingen zijn nabij.
Met de auto rijd je snel naar de uitvalswegen A2, A12, A27 en N230. Het centrum van Utrecht is per fiets in ongeveer 15 minuten bereikbaar.
Ruim, licht en prettig ingedeeld
De woonkamer is royaal opgezet en beschikt over grote ramen, waardoor er veel daglicht binnenkomt. De ruimte leent zich uitstekend voor een comfortabele zithoek en een aparte eettafel. De 2 slaapkamers zijn volwaardig van formaat en maken het appartement geschikt voor verschillende woonwensen: alleen, samen of met een jong gezin.
Comfortabel wonen met balkon op het zuidoosten
Aan de achterzijde bevindt zich het balkon op het zuidoosten, met uitzicht op het omliggende groen. Hier is het prettig verblijven in de ochtend- en middagzon. Daarnaast is er voldoende bergruimte aanwezig, waaronder een voorraadkast.
Genieten van de groene omgeving
Overvecht staat bekend om de ruime opzet, het vele openbaar groen en de goede voorzieningen. In de directe omgeving vind je parken, speelplekken, sportfaciliteiten, een zwembad en een squashcentrum. Hierdoor is er altijd ruimte voor ontspanning of beweging, dichtbij huis.
Indeling
Begane grond
Het appartementencomplex heeft een verzorgd afgesloten entree met intercom, hal, brievenbussen en trappenhuis of lift naar de verdiepingen. Ook is een eigen afsluitbare berging aanwezig.
Eerste verdieping
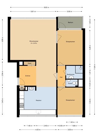
Hal met meterkast en voorraadkast, ruime L-vormige woonkamer (type doorzon) met grote raampartijen en uitzicht op het groen. Royale open L-vormige woonkeuken met diverse inbouwapparatuur, vanuit een 2e hal toegang naar de andere vertrekken, slaapkamer 1 aan de voorzijde en slaapkamer 2 aan de achterzijde, badkamer voorzien van douche met wastafel en een aparte toiletruimte. Balkon op het zuidoosten, bereikbaar vanuit de slaapkamer aan de achterzijde.
Voor afmetingen en plattegronden, zie NEN 2580-meetrapport.
Toelichtingsclausule NEN 2580
De meetinstructie is gebaseerd op de NEN 2580 en is bedoeld om een eenduidige manier van meten toe te passen voor het geven van een indicatie van de gebruiksoppervlakte. De meetinstructie sluit verschillen in meetuitkomsten niet volledig uit, bijvoorbeeld door interpretatieverschillen, afrondingen of beperkingen bij het uitvoeren van de meting.
Voor wie is deze woning geschikt?
Dit appartement is geschikt voor een brede doelgroep: starters, doorstromers, stellen, kleine gezinnen en iedereen die op zoek is naar een ruime, lichte woning met een praktische indeling. De aanwezigheid van 2 slaapkamers maakt het appartement ook geschikt voor thuiswerken of het creëren van een extra hobby- of logeerruimte.
Bijzonderheden en kenmerken
- Woonoppervlakte: ca. 91 m² (conform NEN 2580, meetrapport aanwezig)
- Inhoud: ca. 276 m³
- Ligging: eerste verdieping in portiekflat met lift
- Buitenruimte: balkon op het zuidoosten met uitzicht op groen
- Keuken met inbouwapparatuur
- Badkamer met douche en vaste wastafel
- Eigen inpandige berging op de begane grond
- Verwarming via stadsverwarming; warm water via elektrische boiler (huur)
- Servicekosten bedragen € 212,39 per maand. De vereniging van eigenaars is actief en werkt aan verdere verduurzaming van het gebouw
- Energielabel E
- Veel parkeergelegenheid in de directe omgeving
- Notaris ter keuze van verkopende partij
- Oplevering in overleg
Alle moeite is genomen om de informatie in deze aanmelding zo accuraat en actueel mogelijk weer te geven. Fouten zijn echter nooit uit te sluiten. Vertrouw daarom niet alleen op deze informatie, maar controleer bij aankoop de zaken die voor uw beslissing van belang zijn.
FOR ENGLISH READ BELOW
Patmosdreef 34, Utrecht | Living among greenery, convenience and excellent accessibility
Light, space and a practical layout come together beautifully in this property. At Patmosdreef 34, you will find a spacious apartment of approximately 91 m² with a balcony and storage room, set in a green environment with all amenities within easy reach. The apartment features multiple rooms that are ideal for sleeping, working from home, or hobbies, and the logical layout immediately feels comfortable. Free parking nearby, excellent accessibility, and Overvecht Shopping Centre within walking distance make this a highly attractive and convenient place to live.
Location and surroundings
The apartment is situated in a quiet, green area of Overvecht. Overvecht Shopping Centre is within walking distance and offers a wide range of shops and facilities. Public transport is easily accessible; Utrecht Overvecht station is just a few minutes away, and several bus connections are nearby.
By car, you can quickly reach the A2, A12, A27, and N230 highways. The centre of Utrecht is approximately a 15-minute bike ride away.
Spacious, bright and well-laid-out
The living room is generously sized and features large windows, allowing plenty of natural light to flood in. The space is perfect for a comfortable seating area and a separate dining table. The 2 bedrooms are full-sized, making the apartment suitable for a variety of living arrangements: single, couple, or young family.
Comfortable living with southeast-facing balcony
At the rear of the apartment is a southeast-facing balcony with views over the surrounding greenery. This is an ideal spot to enjoy the morning and afternoon sun. Additionally, there is ample storage space, including a pantry.
Enjoying the green surroundings
Overvecht is known for its spacious layout, abundant public green areas, and excellent amenities. In the immediate vicinity, you will find parks, playgrounds, sports facilities, a swimming pool, and a squash centre. This means there is always space for relaxation or exercise, close to home.
Layout
Ground floor
The apartment complex has a well-maintained, secure entrance with intercom, hallway, mailboxes, and stairs or lift to the upper floors. A private, lockable storage room is also available.
First floor
- Hall with meter cupboard and pantry
- Spacious L-shaped living room (through-living type) with large windows and green views
- Open L-shaped kitchen with built-in appliances
- Bedroom 1 at the front
- Bedrooms 2 at the rear
- Bathroom with shower and washbasin
- Separate toilet
- Southeast-facing balcony, accessible from the rear bedroom
For dimensions and floor plans, see the NEN 2580 measurement report.
NEN 2580 disclaimer
The measurement instructions are based on NEN 2580 and are intended to provide a consistent method for calculating the usable floor area. Differences in measurement outcomes cannot be fully excluded due to interpretation differences, rounding, or limitations when performing the measurements.
Suitable for
This apartment is suitable for a wide audience: first-time buyers, movers, couples, small families, and anyone looking for a spacious, bright home with a practical layout. With 2 bedrooms, the apartment is also ideal for working from home or creating an extra hobby or guest room.
Features and details
- Living area: approx. 91 m² (according to NEN 2580, measurement report available)
- Volume: approx. 276 m³
- Location: first floor in a portico apartment building with lift
- Outdoor space: southeast-facing balcony with green views
- Kitchen with built-in appliances
- Bathroom with shower and washbasin
- Private indoor storage room on the ground floor
- Heating via district heating; hot water via electric boiler (rental)
- Service costs: €212.39 per month. The homeowners’ association is active and working on further sustainability improvements
- Energy label: E
- Ample parking in the immediate vicinity
- Notary of choice by the seller
- Delivery in consultation
Every effort has been made to ensure the accuracy and currency of the information in this listing. Nevertheless, errors may occur. We recommend that you verify all details that are important for your purchasing decision.
Licht, ruimte en een praktische indeling komen hier mooi samen. Aan de Patmosdreef 34 woon je in een royaal appartement van circa 91 m² met balkon en berging, in een groene omgeving en met alle voorzieningen binnen handbereik. De woning beschikt over meerdere kamers die zich uitstekend lenen voor slapen, thuiswerken of hobby’s en voelt dankzij de logische indeling direct prettig aan. Gratis parkeren in de buurt, goede bereikbaarheid en het winkelcentrum Overvecht op loopafstand maken dit een aantrekkelijke en comfortabele woonplek.
Locatie en omgeving
Het appartement ligt in een rustige, groene buurt in Overvecht. Winkelcentrum Overvecht bevindt zich op loopafstand en biedt een uitgebreid aanbod aan winkels en voorzieningen. Openbaar vervoer is goed vertegenwoordigd; station Utrecht Overvecht is binnen enkele minuten te bereiken en diverse busverbindingen zijn nabij.
Met de auto rijd je snel naar de uitvalswegen A2, A12, A27 en N230. Het centrum van Utrecht is per fiets in ongeveer 15 minuten bereikbaar.
Ruim, licht en prettig ingedeeld
De woonkamer is royaal opgezet en beschikt over grote ramen, waardoor er veel daglicht binnenkomt. De ruimte leent zich uitstekend voor een comfortabele zithoek en een aparte eettafel. De 2 slaapkamers zijn volwaardig van formaat en maken het appartement geschikt voor verschillende woonwensen: alleen, samen of met een jong gezin.
Comfortabel wonen met balkon op het zuidoosten
Aan de achterzijde bevindt zich het balkon op het zuidoosten, met uitzicht op het omliggende groen. Hier is het prettig verblijven in de ochtend- en middagzon. Daarnaast is er voldoende bergruimte aanwezig, waaronder een voorraadkast.
Genieten van de groene omgeving
Overvecht staat bekend om de ruime opzet, het vele openbaar groen en de goede voorzieningen. In de directe omgeving vind je parken, speelplekken, sportfaciliteiten, een zwembad en een squashcentrum. Hierdoor is er altijd ruimte voor ontspanning of beweging, dichtbij huis.
Indeling
Begane grond
Het appartementencomplex heeft een verzorgd afgesloten entree met intercom, hal, brievenbussen en trappenhuis of lift naar de verdiepingen. Ook is een eigen afsluitbare berging aanwezig.
Eerste verdieping
Hal met meterkast en voorraadkast, ruime L-vormige woonkamer (type doorzon) met grote raampartijen en uitzicht op het groen. Royale open L-vormige woonkeuken met diverse inbouwapparatuur, vanuit een 2e hal toegang naar de andere vertrekken, slaapkamer 1 aan de voorzijde en slaapkamer 2 aan de achterzijde, badkamer voorzien van douche met wastafel en een aparte toiletruimte. Balkon op het zuidoosten, bereikbaar vanuit de slaapkamer aan de achterzijde.
Voor afmetingen en plattegronden, zie NEN 2580-meetrapport.
Toelichtingsclausule NEN 2580
De meetinstructie is gebaseerd op de NEN 2580 en is bedoeld om een eenduidige manier van meten toe te passen voor het geven van een indicatie van de gebruiksoppervlakte. De meetinstructie sluit verschillen in meetuitkomsten niet volledig uit, bijvoorbeeld door interpretatieverschillen, afrondingen of beperkingen bij het uitvoeren van de meting.
Voor wie is deze woning geschikt?
Dit appartement is geschikt voor een brede doelgroep: starters, doorstromers, stellen, kleine gezinnen en iedereen die op zoek is naar een ruime, lichte woning met een praktische indeling. De aanwezigheid van 2 slaapkamers maakt het appartement ook geschikt voor thuiswerken of het creëren van een extra hobby- of logeerruimte.
Bijzonderheden en kenmerken
- Woonoppervlakte: ca. 91 m² (conform NEN 2580, meetrapport aanwezig)
- Inhoud: ca. 276 m³
- Ligging: eerste verdieping in portiekflat met lift
- Buitenruimte: balkon op het zuidoosten met uitzicht op groen
- Keuken met inbouwapparatuur
- Badkamer met douche en vaste wastafel
- Eigen inpandige berging op de begane grond
- Verwarming via stadsverwarming; warm water via elektrische boiler (huur)
- Servicekosten bedragen € 212,39 per maand. De vereniging van eigenaars is actief en werkt aan verdere verduurzaming van het gebouw
- Energielabel E
- Veel parkeergelegenheid in de directe omgeving
- Notaris ter keuze van verkopende partij
- Oplevering in overleg
Alle moeite is genomen om de informatie in deze aanmelding zo accuraat en actueel mogelijk weer te geven. Fouten zijn echter nooit uit te sluiten. Vertrouw daarom niet alleen op deze informatie, maar controleer bij aankoop de zaken die voor uw beslissing van belang zijn.
FOR ENGLISH READ BELOW
Patmosdreef 34, Utrecht | Living among greenery, convenience and excellent accessibility
Light, space and a practical layout come together beautifully in this property. At Patmosdreef 34, you will find a spacious apartment of approximately 91 m² with a balcony and storage room, set in a green environment with all amenities within easy reach. The apartment features multiple rooms that are ideal for sleeping, working from home, or hobbies, and the logical layout immediately feels comfortable. Free parking nearby, excellent accessibility, and Overvecht Shopping Centre within walking distance make this a highly attractive and convenient place to live.
Location and surroundings
The apartment is situated in a quiet, green area of Overvecht. Overvecht Shopping Centre is within walking distance and offers a wide range of shops and facilities. Public transport is easily accessible; Utrecht Overvecht station is just a few minutes away, and several bus connections are nearby.
By car, you can quickly reach the A2, A12, A27, and N230 highways. The centre of Utrecht is approximately a 15-minute bike ride away.
Spacious, bright and well-laid-out
The living room is generously sized and features large windows, allowing plenty of natural light to flood in. The space is perfect for a comfortable seating area and a separate dining table. The 2 bedrooms are full-sized, making the apartment suitable for a variety of living arrangements: single, couple, or young family.
Comfortable living with southeast-facing balcony
At the rear of the apartment is a southeast-facing balcony with views over the surrounding greenery. This is an ideal spot to enjoy the morning and afternoon sun. Additionally, there is ample storage space, including a pantry.
Enjoying the green surroundings
Overvecht is known for its spacious layout, abundant public green areas, and excellent amenities. In the immediate vicinity, you will find parks, playgrounds, sports facilities, a swimming pool, and a squash centre. This means there is always space for relaxation or exercise, close to home.
Layout
Ground floor
The apartment complex has a well-maintained, secure entrance with intercom, hallway, mailboxes, and stairs or lift to the upper floors. A private, lockable storage room is also available.
First floor
- Hall with meter cupboard and pantry
- Spacious L-shaped living room (through-living type) with large windows and green views
- Open L-shaped kitchen with built-in appliances
- Bedroom 1 at the front
- Bedrooms 2 at the rear
- Bathroom with shower and washbasin
- Separate toilet
- Southeast-facing balcony, accessible from the rear bedroom
For dimensions and floor plans, see the NEN 2580 measurement report.
NEN 2580 disclaimer
The measurement instructions are based on NEN 2580 and are intended to provide a consistent method for calculating the usable floor area. Differences in measurement outcomes cannot be fully excluded due to interpretation differences, rounding, or limitations when performing the measurements.
Suitable for
This apartment is suitable for a wide audience: first-time buyers, movers, couples, small families, and anyone looking for a spacious, bright home with a practical layout. With 2 bedrooms, the apartment is also ideal for working from home or creating an extra hobby or guest room.
Features and details
- Living area: approx. 91 m² (according to NEN 2580, measurement report available)
- Volume: approx. 276 m³
- Location: first floor in a portico apartment building with lift
- Outdoor space: southeast-facing balcony with green views
- Kitchen with built-in appliances
- Bathroom with shower and washbasin
- Private indoor storage room on the ground floor
- Heating via district heating; hot water via electric boiler (rental)
- Service costs: €212.39 per month. The homeowners’ association is active and working on further sustainability improvements
- Energy label: E
- Ample parking in the immediate vicinity
- Notary of choice by the seller
- Delivery in consultation
Every effort has been made to ensure the accuracy and currency of the information in this listing. Nevertheless, errors may occur. We recommend that you verify all details that are important for your purchasing decision.
Kenmerken
| Overdracht | |
|---|---|
| Referentienummer | 01049 |
| Vraagprijs | € 389.000,- k.k. |
| Servicekosten | € 212,39 |
| Status | Nieuw in verkoop |
| Aanvaarding | In overleg |
| Aangeboden sinds | Dinsdag 13 januari 2026 |
| Bouw | |
|---|---|
| Type object | Appartement, portiekflat |
| Woonlaag | 1e woonlaag |
| Soort bouw | Bestaande bouw |
| Bouwperiode | 1967 |
| Dakbedekking | Bitumen |
| Type dak | Platdak |
| Isolatievormen | Dubbel glas |
| Oppervlaktes en inhoud | |
|---|---|
| Woonoppervlakte | 90,5 m² |
| Inhoud | 276 m³ |
| Oppervlakte externe bergruimte | 3,59 m² |
| Oppervlakte gebouwgebonden buitenruimte | 4,43 m² |
| Indeling | |
|---|---|
| Aantal bouwlagen | 1 |
| Aantal kamers | 3 (waarvan 2 slaapkamers) |
| Aantal badkamers | 1 (en 1 apart toilet) |
| Locatie | |
|---|---|
| Ligging | Aan rustige weg Beschutte ligging Dichtbij openbaar vervoer In woonwijk Nabij school Nabij snelweg Nabij winkelcentrum |
| Energieverbruik | |
|---|---|
| Energielabel | E |
| Uitrusting | |
|---|---|
| Warm water | Elektrische boiler |
| Verwarmingssysteem | Stadsverwarming |
| Ventilatie methode | Natuurlijke ventilatie |
| Badkamervoorzieningen | Douche Wastafel |
| Heeft een balkon | Ja |
| Heeft kabel-tv | Ja |
| Heeft een lift | Ja |
| Heeft schuur/berging | Ja |
| Vereniging van Eigenaren | |
|---|---|
| Ingeschreven bij de KvK | Ja |
| Jaarlijkse vergadering | Ja |
| Periodieke bijdrage | Ja |
| Reservefonds | Ja |
| Meer jaren onderhoudsplan | Ja |
| Onderhoudsverwachting | Ja |
| Opstal verzekering | Ja |
| Kadastrale gegevens | |
|---|---|
| Kadastrale aanduiding | Utrecht H 1124 |
| Perceeloppervlakte | 2.215 m² |
| Omvang | Appartementsrecht of complex |
| Eigendomsituatie | Eigen grond |