Te koop: Doelenstraat 7A, 3512 XJ Utrecht
€ 250.000,- k.k.
Type object | Appartement, bovenwoning |
---|---|
Aanvaarding | In overleg |
Woonoppervlakte | 50 m² |
---|---|
Status | Nieuw in verkoop |
Beschrijving
**Financiering via een hypotheek is NIET mogelijk; aankoop dient uit eigen middelen te gebeuren**
HISTORISCH WONEN IN HARTJE UTRECHT – MET VOORDEEL OP DE KOOPPRIJS
Een buitenkans voor wie op zoek is naar een charmante en instapklare woning met een speelse indeling in het geliefde Museumkwartier. Deze woning wordt aangeboden voor € 250.000, terwijl de WOZ-waarde € 300.000 bedraagt. U koopt dus met voordeel, op een unieke locatie in de oude binnenstad van Utrecht.
Het betreft een woning die onderdeel uitmaakt van twee karakteristieke panden. In 2025 is in het achterhuis, met zoveel mogelijk behoud van historische en karakteristieke stijlelementen, een aantrekkelijke etagewoning gerealiseerd.
Bent u een startende professional die zoekt naar een betaalbare en bijzondere woonruimte, of een ouder die een fraaie plek voor een studerend kind zoekt? Dan is dit een kans die u niet mag missen. Geen overbodige luxe, maar een fijn en sfeervol plekje waar u direct uw eigen stempel op kunt drukken.
Let op: er geldt een bijzondere koopconstructie. Zie “Bijzonderheden en Kenmerken” voor meer informatie.
ALGEMEEN
De Doelenstraat is een van de oudste straten van Utrecht en ligt in het rustige, historische Museumkwartier. Hier ervaart u de charme van een autovrije straat met monumentale gevels, terwijl alle voorzieningen van de binnenstad binnen handbereik zijn. In de directe omgeving vindt u een breed scala aan winkels, supermarkten, speciaalzaken en horecagelegenheden, van knusse cafés tot verfijnde restaurants. Daarnaast biedt het Museumkwartier een rijk aanbod aan culturele voorzieningen, waaronder musea, galeries en historische bezienswaardigheden. De buurt ademt cultuur, historie en levendigheid en is zeer geliefd bij bewoners en bezoekers.
DE WONING – DOELENSTRAAT 7A, (EERSTE VERDIEPING)
Indeling en sfeer
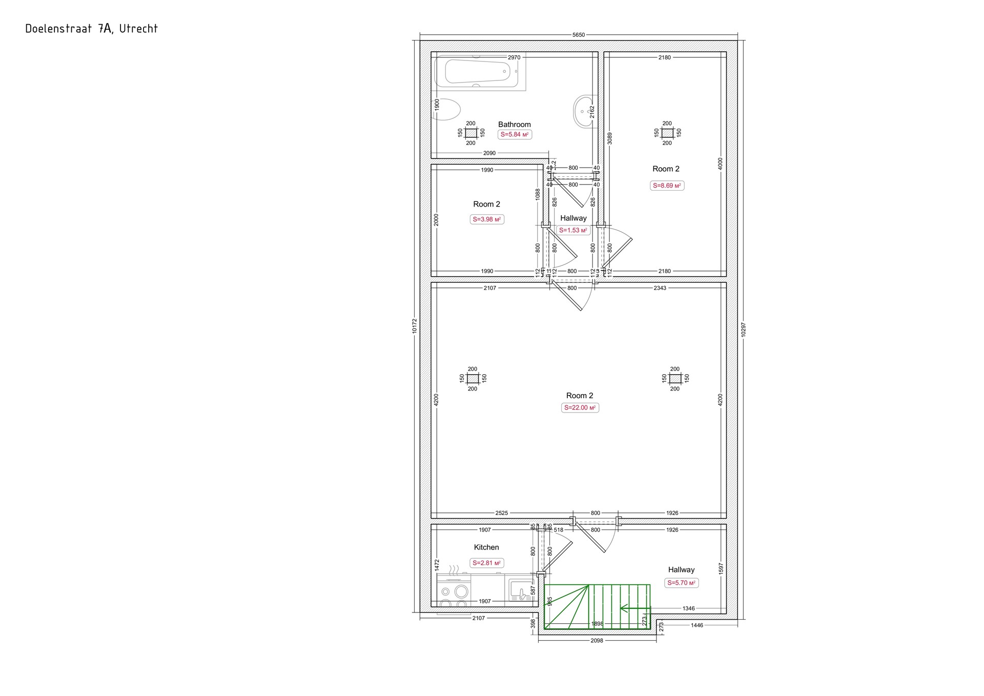
De woning beschikt over een woonoppervlakte van circa 50 m² en is praktisch en speels ingedeeld, als volgt:
- entree van het achterhuis via een afgesloten hofje, trapopgang naar woning;
- eerste verdieping: overloop met toegang tot dichte keuken;
- royale lichte woonkamer met karakteristieke spanten en hoog plafond;
- hal met toegang tot 2 (slaap)kamers, waarvan 1 zonder raam;
- ruime badkamer met ligbad, vaste wastafel, toilet en aansluiting voor een wasmachine.
De combinatie van de historische uitstraling en de compacte, efficiënte indeling maakt dit een sfeervolle en functionele woonruimte. Kortom: een knus en karaktervol appartement op een plek waar historie en modern comfort elkaar ontmoeten.
LIGGING EN BEREIKBAARHEID
Openbaar vervoer
De locatie is uitstekend bereikbaar. In de directe omgeving vindt u bushaltes die zorgen voor snelle verbindingen met andere delen van de stad. Utrecht Centraal Station ligt op korte afstand, met treinverbindingen naar de rest van het land.
Fiets en lopen
De woning ligt op loopafstand van het centrum en het station. Utrecht is een fietsstad bij uitstek; ook hier is het pand uitstekend bereikbaar per fiets.
Auto en parkeren
Voor automobilisten is de bereikbaarheid eveneens gunstig, met nabijgelegen uitvalswegen (A12 en A27). Parkeren is in de buurt mogelijk op basis van betaald parkeren.
BIJZONDERHEDEN EN KENMERKEN
- Financiering via een hypotheek is NIET mogelijk; aankoop dient uit eigen middelen te gebeuren.
- Vraagprijs: € 250.000, - kosten koper (WOZ-waarde: € 300.000, -)
- Bijzondere koopconstructie: u koopt met korting op de marktwaarde. Voorwaarde is dat bij een toekomstige verkoop 50% van de gerealiseerde winst wordt gedeeld met de verkoper (via kettingbeding). Indien u dit liever niet wenst, is dat bespreekbaar en ligt de koopsom hoger.
- Sfeervolle en instapklare bovenwoning met authentieke details en speelse indeling.
- Unieke ligging in het Museumkwartier.
- Woonoppervlakte: ca. 50 m² (niet NEN-2580 gemeten, geen meetrapport beschikbaar).
- Inhoud: ca. 80 m³.
- Energielabel volgt nog.
- Voorzien van dubbele beglazing, gevelisolatie (voorzetwanden) en dakisolatie.
- Verwarming en warm water via CV-combiketel en warmtepomp (collectieve voorziening).
- Bouwjaar: ca. 1956, renovatiejaar: 2025.
- Servicekosten (prognose): € 125,00 per maand.
- Eigendomssituatie: 1/9e onverdeeld aandeel in het eigendom, samen met de andere 8 eigenaren.
- Verkoper is nimmer zelf bewoner geweest.
- Notaris ter keuze van verkoper.
- Oplevering in overleg.
- In de koopovereenkomst worden o.a. de niet-zelfbewoningsclausule en de ‘as is, where is’-clausule opgenomen.
- De vragenlijst met betrekking tot verkoop en lijst van zaken zijn niet beschikbaar.
- Alle moeite is genomen om de informatie in de aanmelding zo accuraat en actueel mogelijk weer te geven. Fouten zijn echter nooit uit te sluiten. Vertrouw daarom niet alleen op deze informatie, maar controleer bij de aankoop van deze woning de zaken die uw beslissing zouden kunnen beïnvloeden.
Belangrijk om te weten
De in de advertentie vermelde maatvoeringen en plattegronden zijn indicatief en niet conform NEN 2580 ingemeten. Deze gegevens zijn uitsluitend bedoeld ter illustratie. Aan de genoemde oppervlaktes en indelingen kunnen dan ook geen rechten worden ontleend. Er is geen meetrapport beschikbaar.
Zekerheidsstelling
Een waarborgsom, ter grootte van 10% van de koopsom te storten op rekening van of af te geven als bankgarantie bij de notaris uiterlijk 5 werkdagen na het besluit tot gunning aan koper is medegedeeld.
Koopovereenkomst
De koopovereenkomst wordt opgesteld op basis van de standaard NVM-koopakte. Hierin worden, indien van toepassing, aanvullende clausules opgenomen met betrekking tot onder andere: de Meetinstructie (maatvoering is indicatief en niet conform NEN-2580), het energielabel, nutsvoorzieningen en een financieringsvoorbehoud.
Oplevering en Staat
De woning aan de Doelenstraat 7A, op de eerste verdieping wordt verkocht en geleverd in de huidige staat, ‘as is, where is’, zoals partijen die kennen en accepteren. Koper aanvaardt uitdrukkelijk dat het object wordt overgedragen zonder nadere garanties over de staat of geschiktheid voor gebruik.
Erfdienstbaarheden en Bijzondere Lasten
Koper aanvaardt alle bekende en/of uit openbare registers kenbare erfdienstbaarheden, bijzondere lasten, kwalitatieve verplichtingen en eventuele andere rechten of beperkingen, voortvloeiend uit de laatste of eerdere eigendomsoverdrachten en/of vestiging van het recht van opstal.
Erfpacht gemeente Utrecht
Het object is gelegen op erfpachtgrond. Koper aanvaardt alle bestaande erfdienstbaarheden, bijzondere lasten en beperkingen zoals vastgelegd in de (historische) akten.
Onderzoek plicht Koper
De koper wordt nadrukkelijk gewezen op zijn eigen onderzoek plicht. Hij wordt geacht zich voldoende geïnformeerd te hebben over de staat van onderhoud, juridische aspecten en feitelijke eigenschappen van de woning en installaties. De verkoper geeft geen garanties over de geschiktheid voor (toekomstig) gebruik. Eventuele zichtbare of verborgen (technische) gebreken zijn voor risico van koper. De koper wordt geadviseerd om – indien gewenst – vóór aankoop bouwkundig en/of juridisch onderzoek te laten uitvoeren.
Disclaimer
Hoewel deze verkoopinformatie met de grootst mogelijke zorg is samengesteld, kunnen aan de inhoud ervan geen rechten worden ontleend. Alle verstrekte informatie, waaronder afmetingen, oppervlakten, plattegronden, maatvoeringen, kenmerken en omschrijvingen, is indicatief en bedoeld om een algemene indruk van het object te geven. De opgegeven maatvoering is niet gebaseerd op een meting conform de NEN-2580-norm.
Koper wordt uitdrukkelijk geadviseerd om zelf onderzoek te (laten) doen naar de staat van het object, juridische aspecten, bestemming en het toegestane gebruik. Eventuele gebreken, beperkingen of risico’s zijn voor rekening van koper. De verkoper aanvaardt geen aansprakelijkheid voor onvolkomenheden of onjuistheden in de vermelde gegevens.
De verkoop geschiedt onder voorbehoud van gunning door verkoper.
FOR ENGLISH READ BELOW
HISTORIC LIVING IN THE HEART OF UTRECHT – WITH A PURCHASE ADVANTAGE
A rare opportunity for those looking for a charming, move-in-ready apartment with a practical layout in the sought-after Museum Quarter. This property is offered at €250,000, while the WOZ value is €300,000 – so you buy below market value in a unique location in the old city center of Utrecht.
The apartment forms part of two characteristic buildings. In 2025, the rear building was carefully renovated into an attractive apartment, preserving as many historic and distinctive features as possible.
Whether you are a young professional looking for an affordable and distinctive home, or a parent seeking a convenient, well-located place for a student, this is an opportunity not to be missed. No unnecessary luxury, but a cozy and characterful space where you can immediately make it your own.
Please note: this property has a special purchase structure. See “Features & Details” for more information.
GENERAL
Doelenstraat is one of the oldest streets in Utrecht and is located in the quiet, historic Museum Quarter. Here, you can enjoy the charm of a pedestrian-friendly street with monumental facades, while all city amenities are within easy reach.
Nearby, you will find a wide range of shops, supermarkets, specialty stores, cafés, and restaurants. The Museum Quarter also offers numerous cultural amenities, including museums, galleries, and historic sites. The area exudes culture, history, and vibrancy, making it a highly desirable location for both residents and visitors.
THE APARTMENT – DOELENSTRAAT 7A, FIRST FLOOR
Layout and Atmosphere
The apartment has approximately 50 m² of living space and is efficiently and thoughtfully laid out:
• Entrance via a gated courtyard to the rear building, staircase to the apartment
• First floor: landing with access to a closed kitchen
• Spacious, bright living room with characteristic beams and high ceilings
• Hall with access to 2 (bed)rooms, one without a window
• Large bathroom with bathtub, sink, toilet, and washing machine connection
The combination of historic character and a compact, functional layout creates a pleasant and practical living space – a cozy, characterful apartment where history and modern comfort meet.
LOCATION AND ACCESSIBILITY
Public Transport
The location is well connected. Nearby bus stops provide quick links to other parts of the city, and Utrecht Central Station is a short distance away, offering train connections across the Netherlands.
Cycling and Walking
Within walking and cycling distance to the city center and station. Utrecht is renowned as a bike-friendly city, and this property is no exception.
Car and Parking
Accessible by car via nearby main roads (A12 and A27). Parking is available nearby via paid parking.
FEATURES & DETAILS
• Financing via a mortgage is NOT possible; purchase must be made from own funds.
• Asking price: €250,000 (WOZ value: €300,000)
• Special purchase structure: you buy below market value. If resold in the future, 50% of any profit is shared with the current owner (via a chain clause). If you prefer not to agree to this, it is negotiable, with a higher purchase price.
• Characterful, move-in-ready apartment with authentic details and practical layout
• Unique location in the Museum Quarter
• Living area: approx. 50 m² (not measured to NEN-2580, no measurement report available)
• Volume: approx. 80 m³
• Energy label pending
• Equipped with double glazing, façade insulation (additional walls), and roof insulation
• Heating and hot water via a central heating combi boiler and collective heat pump
• Built: c. 1956, renovated in 2025
• Service charges (forecast): €125 per month
• Ownership: 1/9 undivided share with eight other owners
• Seller has never lived in the property
• Choice of notary by the seller
• Delivery in consultation
• The sales agreement will include a non-occupancy clause and an ‘as is, where is’ clause
• Sales questionnaire and inventory list not available
• All efforts have been made to ensure the information is accurate and up-to-date. Errors cannot be entirely excluded; buyers are advised to verify independently.
Important to know
The measurements and floor plans provided are indicative and not measured according to NEN-2580. They are for illustration only and no rights can be derived from the stated sizes or layouts. No measurement report is available.
Security Deposit
A deposit of 10% of the purchase price must be paid to the notary or provided as a bank guarantee within 5 working days of notification of award.
Sales Agreement
The purchase agreement will be based on the standard NVM (Dutch Association of Real Estate Agents) sales contract, with additional clauses as applicable regarding the measurement instruction (indicative, not NEN-2580), energy label, utilities, and any financing conditions.
Delivery and Condition
The apartment on the first floor of Doelenstraat 7A is sold in its current condition, ‘as is, where is’, as known and accepted by the parties. The buyer explicitly accepts that the property is transferred without guarantees regarding condition or suitability for use.
Easements and Other Burdens
The buyer accepts all known and/or publicly registered easements, special charges, qualitative obligations, and other rights or restrictions arising from the latest or previous transfers of ownership and/or establishment of rights of superficies.
Ground Lease – City of Utrecht
The property is located on leasehold land. The buyer accepts all existing easements, special charges, and restrictions as recorded in the (historical) deeds.
Buyer’s Due Diligence
The buyer is expressly advised to conduct their own investigations regarding the property’s condition, legal aspects, and features. The seller provides no guarantees regarding suitability for (future) use. Any visible or hidden (technical) defects are at the buyer’s risk. Buyers are advised to carry out, if desired, a technical and/or legal inspection before purchase.
Disclaimer
While this information has been prepared with care, no rights can be derived from its contents. All information, including measurements, floor plans, features, and descriptions, is indicative and intended to provide a general impression of the property. Measurements are not based on NEN-2580.
The buyer is strongly advised to conduct independent research regarding the property, legal matters, zoning, and permitted use. Any defects, restrictions, or risks are the buyer’s responsibility. The seller accepts no liability for inaccuracies or omissions.
Sale subject to approval by the seller.
HISTORISCH WONEN IN HARTJE UTRECHT – MET VOORDEEL OP DE KOOPPRIJS
Een buitenkans voor wie op zoek is naar een charmante en instapklare woning met een speelse indeling in het geliefde Museumkwartier. Deze woning wordt aangeboden voor € 250.000, terwijl de WOZ-waarde € 300.000 bedraagt. U koopt dus met voordeel, op een unieke locatie in de oude binnenstad van Utrecht.
Het betreft een woning die onderdeel uitmaakt van twee karakteristieke panden. In 2025 is in het achterhuis, met zoveel mogelijk behoud van historische en karakteristieke stijlelementen, een aantrekkelijke etagewoning gerealiseerd.
Bent u een startende professional die zoekt naar een betaalbare en bijzondere woonruimte, of een ouder die een fraaie plek voor een studerend kind zoekt? Dan is dit een kans die u niet mag missen. Geen overbodige luxe, maar een fijn en sfeervol plekje waar u direct uw eigen stempel op kunt drukken.
Let op: er geldt een bijzondere koopconstructie. Zie “Bijzonderheden en Kenmerken” voor meer informatie.
ALGEMEEN
De Doelenstraat is een van de oudste straten van Utrecht en ligt in het rustige, historische Museumkwartier. Hier ervaart u de charme van een autovrije straat met monumentale gevels, terwijl alle voorzieningen van de binnenstad binnen handbereik zijn. In de directe omgeving vindt u een breed scala aan winkels, supermarkten, speciaalzaken en horecagelegenheden, van knusse cafés tot verfijnde restaurants. Daarnaast biedt het Museumkwartier een rijk aanbod aan culturele voorzieningen, waaronder musea, galeries en historische bezienswaardigheden. De buurt ademt cultuur, historie en levendigheid en is zeer geliefd bij bewoners en bezoekers.
DE WONING – DOELENSTRAAT 7A, (EERSTE VERDIEPING)
Indeling en sfeer
De woning beschikt over een woonoppervlakte van circa 50 m² en is praktisch en speels ingedeeld, als volgt:
- entree van het achterhuis via een afgesloten hofje, trapopgang naar woning;
- eerste verdieping: overloop met toegang tot dichte keuken;
- royale lichte woonkamer met karakteristieke spanten en hoog plafond;
- hal met toegang tot 2 (slaap)kamers, waarvan 1 zonder raam;
- ruime badkamer met ligbad, vaste wastafel, toilet en aansluiting voor een wasmachine.
De combinatie van de historische uitstraling en de compacte, efficiënte indeling maakt dit een sfeervolle en functionele woonruimte. Kortom: een knus en karaktervol appartement op een plek waar historie en modern comfort elkaar ontmoeten.
LIGGING EN BEREIKBAARHEID
Openbaar vervoer
De locatie is uitstekend bereikbaar. In de directe omgeving vindt u bushaltes die zorgen voor snelle verbindingen met andere delen van de stad. Utrecht Centraal Station ligt op korte afstand, met treinverbindingen naar de rest van het land.
Fiets en lopen
De woning ligt op loopafstand van het centrum en het station. Utrecht is een fietsstad bij uitstek; ook hier is het pand uitstekend bereikbaar per fiets.
Auto en parkeren
Voor automobilisten is de bereikbaarheid eveneens gunstig, met nabijgelegen uitvalswegen (A12 en A27). Parkeren is in de buurt mogelijk op basis van betaald parkeren.
BIJZONDERHEDEN EN KENMERKEN
- Financiering via een hypotheek is NIET mogelijk; aankoop dient uit eigen middelen te gebeuren.
- Vraagprijs: € 250.000, - kosten koper (WOZ-waarde: € 300.000, -)
- Bijzondere koopconstructie: u koopt met korting op de marktwaarde. Voorwaarde is dat bij een toekomstige verkoop 50% van de gerealiseerde winst wordt gedeeld met de verkoper (via kettingbeding). Indien u dit liever niet wenst, is dat bespreekbaar en ligt de koopsom hoger.
- Sfeervolle en instapklare bovenwoning met authentieke details en speelse indeling.
- Unieke ligging in het Museumkwartier.
- Woonoppervlakte: ca. 50 m² (niet NEN-2580 gemeten, geen meetrapport beschikbaar).
- Inhoud: ca. 80 m³.
- Energielabel volgt nog.
- Voorzien van dubbele beglazing, gevelisolatie (voorzetwanden) en dakisolatie.
- Verwarming en warm water via CV-combiketel en warmtepomp (collectieve voorziening).
- Bouwjaar: ca. 1956, renovatiejaar: 2025.
- Servicekosten (prognose): € 125,00 per maand.
- Eigendomssituatie: 1/9e onverdeeld aandeel in het eigendom, samen met de andere 8 eigenaren.
- Verkoper is nimmer zelf bewoner geweest.
- Notaris ter keuze van verkoper.
- Oplevering in overleg.
- In de koopovereenkomst worden o.a. de niet-zelfbewoningsclausule en de ‘as is, where is’-clausule opgenomen.
- De vragenlijst met betrekking tot verkoop en lijst van zaken zijn niet beschikbaar.
- Alle moeite is genomen om de informatie in de aanmelding zo accuraat en actueel mogelijk weer te geven. Fouten zijn echter nooit uit te sluiten. Vertrouw daarom niet alleen op deze informatie, maar controleer bij de aankoop van deze woning de zaken die uw beslissing zouden kunnen beïnvloeden.
Belangrijk om te weten
De in de advertentie vermelde maatvoeringen en plattegronden zijn indicatief en niet conform NEN 2580 ingemeten. Deze gegevens zijn uitsluitend bedoeld ter illustratie. Aan de genoemde oppervlaktes en indelingen kunnen dan ook geen rechten worden ontleend. Er is geen meetrapport beschikbaar.
Zekerheidsstelling
Een waarborgsom, ter grootte van 10% van de koopsom te storten op rekening van of af te geven als bankgarantie bij de notaris uiterlijk 5 werkdagen na het besluit tot gunning aan koper is medegedeeld.
Koopovereenkomst
De koopovereenkomst wordt opgesteld op basis van de standaard NVM-koopakte. Hierin worden, indien van toepassing, aanvullende clausules opgenomen met betrekking tot onder andere: de Meetinstructie (maatvoering is indicatief en niet conform NEN-2580), het energielabel, nutsvoorzieningen en een financieringsvoorbehoud.
Oplevering en Staat
De woning aan de Doelenstraat 7A, op de eerste verdieping wordt verkocht en geleverd in de huidige staat, ‘as is, where is’, zoals partijen die kennen en accepteren. Koper aanvaardt uitdrukkelijk dat het object wordt overgedragen zonder nadere garanties over de staat of geschiktheid voor gebruik.
Erfdienstbaarheden en Bijzondere Lasten
Koper aanvaardt alle bekende en/of uit openbare registers kenbare erfdienstbaarheden, bijzondere lasten, kwalitatieve verplichtingen en eventuele andere rechten of beperkingen, voortvloeiend uit de laatste of eerdere eigendomsoverdrachten en/of vestiging van het recht van opstal.
Erfpacht gemeente Utrecht
Het object is gelegen op erfpachtgrond. Koper aanvaardt alle bestaande erfdienstbaarheden, bijzondere lasten en beperkingen zoals vastgelegd in de (historische) akten.
Onderzoek plicht Koper
De koper wordt nadrukkelijk gewezen op zijn eigen onderzoek plicht. Hij wordt geacht zich voldoende geïnformeerd te hebben over de staat van onderhoud, juridische aspecten en feitelijke eigenschappen van de woning en installaties. De verkoper geeft geen garanties over de geschiktheid voor (toekomstig) gebruik. Eventuele zichtbare of verborgen (technische) gebreken zijn voor risico van koper. De koper wordt geadviseerd om – indien gewenst – vóór aankoop bouwkundig en/of juridisch onderzoek te laten uitvoeren.
Disclaimer
Hoewel deze verkoopinformatie met de grootst mogelijke zorg is samengesteld, kunnen aan de inhoud ervan geen rechten worden ontleend. Alle verstrekte informatie, waaronder afmetingen, oppervlakten, plattegronden, maatvoeringen, kenmerken en omschrijvingen, is indicatief en bedoeld om een algemene indruk van het object te geven. De opgegeven maatvoering is niet gebaseerd op een meting conform de NEN-2580-norm.
Koper wordt uitdrukkelijk geadviseerd om zelf onderzoek te (laten) doen naar de staat van het object, juridische aspecten, bestemming en het toegestane gebruik. Eventuele gebreken, beperkingen of risico’s zijn voor rekening van koper. De verkoper aanvaardt geen aansprakelijkheid voor onvolkomenheden of onjuistheden in de vermelde gegevens.
De verkoop geschiedt onder voorbehoud van gunning door verkoper.
FOR ENGLISH READ BELOW
HISTORIC LIVING IN THE HEART OF UTRECHT – WITH A PURCHASE ADVANTAGE
A rare opportunity for those looking for a charming, move-in-ready apartment with a practical layout in the sought-after Museum Quarter. This property is offered at €250,000, while the WOZ value is €300,000 – so you buy below market value in a unique location in the old city center of Utrecht.
The apartment forms part of two characteristic buildings. In 2025, the rear building was carefully renovated into an attractive apartment, preserving as many historic and distinctive features as possible.
Whether you are a young professional looking for an affordable and distinctive home, or a parent seeking a convenient, well-located place for a student, this is an opportunity not to be missed. No unnecessary luxury, but a cozy and characterful space where you can immediately make it your own.
Please note: this property has a special purchase structure. See “Features & Details” for more information.
GENERAL
Doelenstraat is one of the oldest streets in Utrecht and is located in the quiet, historic Museum Quarter. Here, you can enjoy the charm of a pedestrian-friendly street with monumental facades, while all city amenities are within easy reach.
Nearby, you will find a wide range of shops, supermarkets, specialty stores, cafés, and restaurants. The Museum Quarter also offers numerous cultural amenities, including museums, galleries, and historic sites. The area exudes culture, history, and vibrancy, making it a highly desirable location for both residents and visitors.
THE APARTMENT – DOELENSTRAAT 7A, FIRST FLOOR
Layout and Atmosphere
The apartment has approximately 50 m² of living space and is efficiently and thoughtfully laid out:
• Entrance via a gated courtyard to the rear building, staircase to the apartment
• First floor: landing with access to a closed kitchen
• Spacious, bright living room with characteristic beams and high ceilings
• Hall with access to 2 (bed)rooms, one without a window
• Large bathroom with bathtub, sink, toilet, and washing machine connection
The combination of historic character and a compact, functional layout creates a pleasant and practical living space – a cozy, characterful apartment where history and modern comfort meet.
LOCATION AND ACCESSIBILITY
Public Transport
The location is well connected. Nearby bus stops provide quick links to other parts of the city, and Utrecht Central Station is a short distance away, offering train connections across the Netherlands.
Cycling and Walking
Within walking and cycling distance to the city center and station. Utrecht is renowned as a bike-friendly city, and this property is no exception.
Car and Parking
Accessible by car via nearby main roads (A12 and A27). Parking is available nearby via paid parking.
FEATURES & DETAILS
• Financing via a mortgage is NOT possible; purchase must be made from own funds.
• Asking price: €250,000 (WOZ value: €300,000)
• Special purchase structure: you buy below market value. If resold in the future, 50% of any profit is shared with the current owner (via a chain clause). If you prefer not to agree to this, it is negotiable, with a higher purchase price.
• Characterful, move-in-ready apartment with authentic details and practical layout
• Unique location in the Museum Quarter
• Living area: approx. 50 m² (not measured to NEN-2580, no measurement report available)
• Volume: approx. 80 m³
• Energy label pending
• Equipped with double glazing, façade insulation (additional walls), and roof insulation
• Heating and hot water via a central heating combi boiler and collective heat pump
• Built: c. 1956, renovated in 2025
• Service charges (forecast): €125 per month
• Ownership: 1/9 undivided share with eight other owners
• Seller has never lived in the property
• Choice of notary by the seller
• Delivery in consultation
• The sales agreement will include a non-occupancy clause and an ‘as is, where is’ clause
• Sales questionnaire and inventory list not available
• All efforts have been made to ensure the information is accurate and up-to-date. Errors cannot be entirely excluded; buyers are advised to verify independently.
Important to know
The measurements and floor plans provided are indicative and not measured according to NEN-2580. They are for illustration only and no rights can be derived from the stated sizes or layouts. No measurement report is available.
Security Deposit
A deposit of 10% of the purchase price must be paid to the notary or provided as a bank guarantee within 5 working days of notification of award.
Sales Agreement
The purchase agreement will be based on the standard NVM (Dutch Association of Real Estate Agents) sales contract, with additional clauses as applicable regarding the measurement instruction (indicative, not NEN-2580), energy label, utilities, and any financing conditions.
Delivery and Condition
The apartment on the first floor of Doelenstraat 7A is sold in its current condition, ‘as is, where is’, as known and accepted by the parties. The buyer explicitly accepts that the property is transferred without guarantees regarding condition or suitability for use.
Easements and Other Burdens
The buyer accepts all known and/or publicly registered easements, special charges, qualitative obligations, and other rights or restrictions arising from the latest or previous transfers of ownership and/or establishment of rights of superficies.
Ground Lease – City of Utrecht
The property is located on leasehold land. The buyer accepts all existing easements, special charges, and restrictions as recorded in the (historical) deeds.
Buyer’s Due Diligence
The buyer is expressly advised to conduct their own investigations regarding the property’s condition, legal aspects, and features. The seller provides no guarantees regarding suitability for (future) use. Any visible or hidden (technical) defects are at the buyer’s risk. Buyers are advised to carry out, if desired, a technical and/or legal inspection before purchase.
Disclaimer
While this information has been prepared with care, no rights can be derived from its contents. All information, including measurements, floor plans, features, and descriptions, is indicative and intended to provide a general impression of the property. Measurements are not based on NEN-2580.
The buyer is strongly advised to conduct independent research regarding the property, legal matters, zoning, and permitted use. Any defects, restrictions, or risks are the buyer’s responsibility. The seller accepts no liability for inaccuracies or omissions.
Sale subject to approval by the seller.
Kenmerken
Overdracht | |
---|---|
Referentienummer | 01040 |
Vraagprijs | € 250.000,- k.k. |
Servicekosten | € 125,- |
Status | Nieuw in verkoop |
Aanvaarding | In overleg |
Aangeboden sinds | Woensdag 24 september 2025 |
Laatste wijziging | Vrijdag 3 oktober 2025 |
Bouw | |
---|---|
Type object | Appartement, bovenwoning |
Woonlaag | 1e woonlaag |
Soort bouw | Bestaande bouw |
Dakbedekking | Dakpannen |
Type dak | Zadeldak |
Isolatievormen | Dakisolatie Dubbel glas |
Oppervlaktes en inhoud | |
---|---|
Woonoppervlakte | 50 m² |
Inhoud | 80 m³ |
Indeling | |
---|---|
Aantal bouwlagen | 1 |
Aantal kamers | 3 (waarvan 2 slaapkamers) |
Aantal badkamers | 1 |
Locatie | |
---|---|
Ligging | Aan rustige weg Beschutte ligging Dichtbij openbaar vervoer In woonwijk Nabij school |
CV ketel | |
---|---|
Combiketel | Ja |
Eigendom | Eigendom |
Uitrusting | |
---|---|
Warm water | Centrale voorziening CV-ketel |
Verwarmingssysteem | Centrale verwarming Warmtepomp |
Badkamervoorzieningen | Ligbad Toilet Wastafel |
Kadastrale gegevens | |
---|---|
Kadastrale aanduiding | Utrecht C 8872 |
Omvang | Deel perceel |
Eigendomsituatie | Erfpacht |
Lasten | Voortdurend, |