Te koop: Jagerlaan 74, 3701 XL Zeist
€ 125.000,- k.k.
Type object | Appartement, Studentenkamer, wonen overig |
---|---|
Aanvaarding | In overleg |
Woonoppervlakte | 27,8 m² |
---|---|
Status | Nieuw in verkoop |
Beschrijving
**Financiering via een hypotheek is niet mogelijk; aankoop dient uit eigen middelen te gebeuren**
Te koop: instapklare en lichte studio in hartje Zeist
Ben je op zoek naar een nette, frisse studio op een centrale plek? Dan is Jagerlaan 74-Studio 7 in Zeist zeker een bezichtiging waard. Deze efficiënte en lichte woonruimte is recent gerenoveerd (oplevering 2025) en direct klaar voor gebruik.
Centrale ligging
De studio ligt in het centrum van Zeist, op loopafstand van winkels, cafés en restaurants. Voor wie regelmatig reist: station Driebergen-Zeist is op fietsafstand, en er zijn goede busverbindingen om de hoek. Zo ben je binnen korte tijd in Utrecht, Amersfoort of andere steden in de regio.
Recent gerenoveerd
Het pand, gebouwd in 1921, heeft een karakteristieke uitstraling maar is recent volledig gemoderniseerd. De studio beschikt over nieuwe vloeren, strak schilderwerk, dubbel glas, dakisolatie en extra voorzetwanden. Alles voelt fris en netjes aan, zodat je zonder klussen direct kunt verhuizen.
Indeling
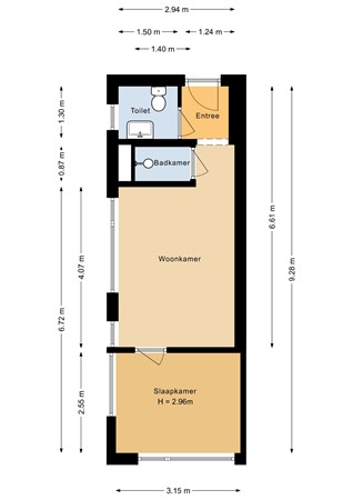
De studio is bereikbaar via de gezamenlijke entree van het pand en een centrale gang. Voorbij de gang bevindt zich een ruime keukenruimte met twee gloednieuwe keukens, voorzien van diverse inbouwapparatuur, die gedeeld wordt met maximaal zeven andere bewoners. De studio zelf bestaat uit een halletje met toiletruimte (vaste wastafel en aansluiting voor wasmachine) en aparte doucheruimte, een woonkamer en een aansluitende slaapkamer, waardoor je extra privacy hebt.
AFMETINGEN EN PLATTEGRONDEN
Zie NEN 2580 meetrapport.
Toelichtingsclausule NEN2580 (De Meetinstructie is gebaseerd op de NEN2580).
De Meetinstructie is bedoeld om een meer eenduidige manier van meten toe te passen voor het geven van een indicatie van de gebruiksoppervlakte. De Meetinstructie sluit verschillen in meetuitkomsten niet volledig uit, door bijvoorbeeld interpretatieverschillen, afrondingen of beperkingen bij het uitvoeren van de meting.
Gezamenlijke voorzieningen
De studio heeft geen eigen keuken, maar maakt gebruik van de twee gezamenlijke keukens in het pand. Deze zijn in 2025 geplaatst en voorzien van moderne inbouwapparatuur. De keukens worden gedeeld met maximaal zeven andere bewoners. Verwarming en warm water worden geleverd via een gezamenlijke CV-installatie.
Waarom kiezen voor Jagerlaan 74, Zeist Studio 7?
- Centrale ligging Zeist
- Loopafstand van winkels, horeca en station
- Veel lichtinval met hoge plafonds
- Praktische indeling met aparte slaapkamer
- Instapklaar en ideaal voor starters
Interesse?
Maak een afspraak voor een bezichtiging en ontdek of Jagerlaan 74-Studio 7 jouw nieuwe woonplek wordt.
BIJZONDERHEDEN EN KENMERKEN
- Financiering via een hypotheek is niet mogelijk; aankoop dient uit eigen middelen te gebeuren.
- Leuke instapklare 2-kamer studio op een leuke plek in Zeist, geschikt voor studenten en starters.
- Woonoppervlak: ca. 28m2 (conform NEN-2580, meetrapport beschikbaar)
- Inhoud: ca. 106 m3.
- Oplevering in overleg.
- Bouwjaar: 1921, renovatiejaar 2025.
- De studio is afgewerkt met PVC-vloer, plinten en afgewerkte wanden/plafonds, waardoor de studio direct klaar is om in te trekken.
- Verkoper is nimmer woonachtig geweest in het verkochte.
- Voorbehoud gunning verkoper, voorkeur geniet aan gelijkgestemde (starter/student).
- Notaris ter keuze verkoper; projectnotaris Prinsenhof Notarissen te Prinsenbeek.
- Voorschot bijdragen (servicekosten): € 125,00 per maand (prognose).
- Eigendomssituatie: bij aankoop verwerft u een 1/8e aandeel in een nog te vestigen recht van opstal op het pand, met exclusief gebruik van studio 7, gelegen op de begane grond. De juridische afhandeling en levering zal plaatsvinden via een nog te vestigen notariële akte van opstal, opgemaakt door de betrokken notaris.
- Energielabel: volgt nog.
- Isolatie: studio is voorzien van dubbele beglazing, gevelisolatie middels voorzetwanden aan de binnenzijde en dakisolatie.
- Verwarming en warmwater: middels gezamenlijke cv-combiketel (eigendom);
- In het pand zijn 2 gezamenlijke keukens aanwezig (geplaatst in 2025), voorzien van alle moderne inbouwapparatuur, in gebruik door in totaal 8 studio’s.
- De vragenlijst en lijst van zaken zijn niet beschikbaar.
Belangrijk om te weten:
Koopovereenkomst
De koopovereenkomst wordt opgesteld op basis van de standaard NVM-koopakte. Hierin worden, indien van toepassing, aanvullende clausules opgenomen met betrekking tot onder andere: niet-zelfbewoningsclausule, ‘As is where is’ worden opgenomen.
Oplevering en Staat
De studio (7) aan de Jagerlaan 74 te Zeist wordt verkocht en geleverd in de huidige staat, ‘as is, where is’, zoals partijen die kennen en accepteren. Koper aanvaardt uitdrukkelijk dat het object wordt overgedragen zonder nadere garanties over de staat of geschiktheid voor gebruik.
Erfdienstbaarheden en Bijzondere Lasten
Koper aanvaardt alle bekende en/of uit openbare registers kenbare erfdienstbaarheden, bijzondere lasten, kwalitatieve verplichtingen en eventuele andere rechten of beperkingen, voortvloeiend uit de laatste of eerdere eigendomsoverdrachten en/of vestiging van het recht van opstal.
Eigendomssituatie
Bij aankoop verwerft u 1/8e aandeel in een nog te vestigen recht van opstal op het pand, met exclusief gebruik van deze studio. De juridische afhandeling en levering zal plaatsvinden via een nog te vestigen notariële akte van opstal, opgemaakt door de betrokken notaris.
Onderzoeksplicht Koper
De koper wordt nadrukkelijk gewezen op zijn eigen onderzoeksplicht. Hij wordt geacht zich voldoende geïnformeerd te hebben over de staat van onderhoud, juridische aspecten en feitelijke eigenschappen van de woning en installaties. De verkoper geeft geen garanties over de geschiktheid voor (toekomstig) gebruik. Eventuele zichtbare of verborgen (technische) gebreken zijn voor risico van koper. De koper wordt geadviseerd om – indien gewenst – vóór aankoop bouwkundig en/of juridisch onderzoek te laten uitvoeren.
Disclaimer
Hoewel deze verkoopinformatie met de grootst mogelijke zorg is samengesteld, kunnen aan de inhoud ervan geen rechten worden ontleend. Alle verstrekte informatie, waaronder afmetingen, oppervlakten, plattegronden, maatvoeringen, kenmerken en omschrijvingen, is indicatief en bedoeld om een algemene indruk van het object te geven. De opgegeven maatvoering is niet gebaseerd op een meting conform de NEN-2580-norm.
Koper wordt uitdrukkelijk geadviseerd om zelf onderzoek te (laten) doen naar de staat van het object, juridische aspecten, bestemming en het toegestane gebruik. Eventuele gebreken, beperkingen of risico’s zijn voor rekening van koper. De verkoper aanvaardt geen aansprakelijkheid voor onvolkomenheden of onjuistheden in de vermelde gegevens.
De verkoop geschiedt onder voorbehoud van gunning door verkoper.
Te koop: instapklare en lichte studio in hartje Zeist
Ben je op zoek naar een nette, frisse studio op een centrale plek? Dan is Jagerlaan 74-Studio 7 in Zeist zeker een bezichtiging waard. Deze efficiënte en lichte woonruimte is recent gerenoveerd (oplevering 2025) en direct klaar voor gebruik.
Centrale ligging
De studio ligt in het centrum van Zeist, op loopafstand van winkels, cafés en restaurants. Voor wie regelmatig reist: station Driebergen-Zeist is op fietsafstand, en er zijn goede busverbindingen om de hoek. Zo ben je binnen korte tijd in Utrecht, Amersfoort of andere steden in de regio.
Recent gerenoveerd
Het pand, gebouwd in 1921, heeft een karakteristieke uitstraling maar is recent volledig gemoderniseerd. De studio beschikt over nieuwe vloeren, strak schilderwerk, dubbel glas, dakisolatie en extra voorzetwanden. Alles voelt fris en netjes aan, zodat je zonder klussen direct kunt verhuizen.
Indeling
De studio is bereikbaar via de gezamenlijke entree van het pand en een centrale gang. Voorbij de gang bevindt zich een ruime keukenruimte met twee gloednieuwe keukens, voorzien van diverse inbouwapparatuur, die gedeeld wordt met maximaal zeven andere bewoners. De studio zelf bestaat uit een halletje met toiletruimte (vaste wastafel en aansluiting voor wasmachine) en aparte doucheruimte, een woonkamer en een aansluitende slaapkamer, waardoor je extra privacy hebt.
AFMETINGEN EN PLATTEGRONDEN
Zie NEN 2580 meetrapport.
Toelichtingsclausule NEN2580 (De Meetinstructie is gebaseerd op de NEN2580).
De Meetinstructie is bedoeld om een meer eenduidige manier van meten toe te passen voor het geven van een indicatie van de gebruiksoppervlakte. De Meetinstructie sluit verschillen in meetuitkomsten niet volledig uit, door bijvoorbeeld interpretatieverschillen, afrondingen of beperkingen bij het uitvoeren van de meting.
Gezamenlijke voorzieningen
De studio heeft geen eigen keuken, maar maakt gebruik van de twee gezamenlijke keukens in het pand. Deze zijn in 2025 geplaatst en voorzien van moderne inbouwapparatuur. De keukens worden gedeeld met maximaal zeven andere bewoners. Verwarming en warm water worden geleverd via een gezamenlijke CV-installatie.
Waarom kiezen voor Jagerlaan 74, Zeist Studio 7?
- Centrale ligging Zeist
- Loopafstand van winkels, horeca en station
- Veel lichtinval met hoge plafonds
- Praktische indeling met aparte slaapkamer
- Instapklaar en ideaal voor starters
Interesse?
Maak een afspraak voor een bezichtiging en ontdek of Jagerlaan 74-Studio 7 jouw nieuwe woonplek wordt.
BIJZONDERHEDEN EN KENMERKEN
- Financiering via een hypotheek is niet mogelijk; aankoop dient uit eigen middelen te gebeuren.
- Leuke instapklare 2-kamer studio op een leuke plek in Zeist, geschikt voor studenten en starters.
- Woonoppervlak: ca. 28m2 (conform NEN-2580, meetrapport beschikbaar)
- Inhoud: ca. 106 m3.
- Oplevering in overleg.
- Bouwjaar: 1921, renovatiejaar 2025.
- De studio is afgewerkt met PVC-vloer, plinten en afgewerkte wanden/plafonds, waardoor de studio direct klaar is om in te trekken.
- Verkoper is nimmer woonachtig geweest in het verkochte.
- Voorbehoud gunning verkoper, voorkeur geniet aan gelijkgestemde (starter/student).
- Notaris ter keuze verkoper; projectnotaris Prinsenhof Notarissen te Prinsenbeek.
- Voorschot bijdragen (servicekosten): € 125,00 per maand (prognose).
- Eigendomssituatie: bij aankoop verwerft u een 1/8e aandeel in een nog te vestigen recht van opstal op het pand, met exclusief gebruik van studio 7, gelegen op de begane grond. De juridische afhandeling en levering zal plaatsvinden via een nog te vestigen notariële akte van opstal, opgemaakt door de betrokken notaris.
- Energielabel: volgt nog.
- Isolatie: studio is voorzien van dubbele beglazing, gevelisolatie middels voorzetwanden aan de binnenzijde en dakisolatie.
- Verwarming en warmwater: middels gezamenlijke cv-combiketel (eigendom);
- In het pand zijn 2 gezamenlijke keukens aanwezig (geplaatst in 2025), voorzien van alle moderne inbouwapparatuur, in gebruik door in totaal 8 studio’s.
- De vragenlijst en lijst van zaken zijn niet beschikbaar.
Belangrijk om te weten:
Koopovereenkomst
De koopovereenkomst wordt opgesteld op basis van de standaard NVM-koopakte. Hierin worden, indien van toepassing, aanvullende clausules opgenomen met betrekking tot onder andere: niet-zelfbewoningsclausule, ‘As is where is’ worden opgenomen.
Oplevering en Staat
De studio (7) aan de Jagerlaan 74 te Zeist wordt verkocht en geleverd in de huidige staat, ‘as is, where is’, zoals partijen die kennen en accepteren. Koper aanvaardt uitdrukkelijk dat het object wordt overgedragen zonder nadere garanties over de staat of geschiktheid voor gebruik.
Erfdienstbaarheden en Bijzondere Lasten
Koper aanvaardt alle bekende en/of uit openbare registers kenbare erfdienstbaarheden, bijzondere lasten, kwalitatieve verplichtingen en eventuele andere rechten of beperkingen, voortvloeiend uit de laatste of eerdere eigendomsoverdrachten en/of vestiging van het recht van opstal.
Eigendomssituatie
Bij aankoop verwerft u 1/8e aandeel in een nog te vestigen recht van opstal op het pand, met exclusief gebruik van deze studio. De juridische afhandeling en levering zal plaatsvinden via een nog te vestigen notariële akte van opstal, opgemaakt door de betrokken notaris.
Onderzoeksplicht Koper
De koper wordt nadrukkelijk gewezen op zijn eigen onderzoeksplicht. Hij wordt geacht zich voldoende geïnformeerd te hebben over de staat van onderhoud, juridische aspecten en feitelijke eigenschappen van de woning en installaties. De verkoper geeft geen garanties over de geschiktheid voor (toekomstig) gebruik. Eventuele zichtbare of verborgen (technische) gebreken zijn voor risico van koper. De koper wordt geadviseerd om – indien gewenst – vóór aankoop bouwkundig en/of juridisch onderzoek te laten uitvoeren.
Disclaimer
Hoewel deze verkoopinformatie met de grootst mogelijke zorg is samengesteld, kunnen aan de inhoud ervan geen rechten worden ontleend. Alle verstrekte informatie, waaronder afmetingen, oppervlakten, plattegronden, maatvoeringen, kenmerken en omschrijvingen, is indicatief en bedoeld om een algemene indruk van het object te geven. De opgegeven maatvoering is niet gebaseerd op een meting conform de NEN-2580-norm.
Koper wordt uitdrukkelijk geadviseerd om zelf onderzoek te (laten) doen naar de staat van het object, juridische aspecten, bestemming en het toegestane gebruik. Eventuele gebreken, beperkingen of risico’s zijn voor rekening van koper. De verkoper aanvaardt geen aansprakelijkheid voor onvolkomenheden of onjuistheden in de vermelde gegevens.
De verkoop geschiedt onder voorbehoud van gunning door verkoper.
Kenmerken
Overdracht | |
---|---|
Referentienummer | 01037 |
Vraagprijs | € 125.000,- k.k. |
Status | Nieuw in verkoop |
Aanvaarding | In overleg |
Aangeboden sinds | Woensdag 17 september 2025 |
Laatste wijziging | Vrijdag 3 oktober 2025 |
Bouw | |
---|---|
Type object | Appartement, Studentenkamer, wonen overig |
Woonlaag | 1e woonlaag |
Soort bouw | Bestaande bouw |
Bouwperiode | 1921 |
Isolatievormen | Dakisolatie Dubbel glas Muurisolatie |
Oppervlaktes en inhoud | |
---|---|
Woonoppervlakte | 27,8 m² |
Inhoud | 106 m³ |
Indeling | |
---|---|
Aantal bouwlagen | 1 |
Aantal kamers | 2 (waarvan 1 slaapkamer) |
Aantal toiletten | 1 |
Locatie | |
---|---|
Ligging | Aan rustige weg Dichtbij openbaar vervoer In centrum In woonwijk Nabij school Nabij snelweg |
CV ketel | |
---|---|
Warmtebron | Gas |
Combiketel | Ja |
Eigendom | Eigendom |
Uitrusting | |
---|---|
Warm water | Centrale voorziening |
Verwarmingssysteem | Centrale verwarming |
Kadastrale gegevens | |
---|---|
Kadastrale aanduiding | Zeist H 3330 |
Omvang | Deel perceel |
Eigendomsituatie | Opstal |